Сдам в аренду помещение свободного назначения в Новосибирске 140 кв.м
- 31/03/2026 06:42
- Россия, Новосибирск
- Коммерческая недвижимость, гаражи, стоянки
- Продам, предлагаю - частное лицо
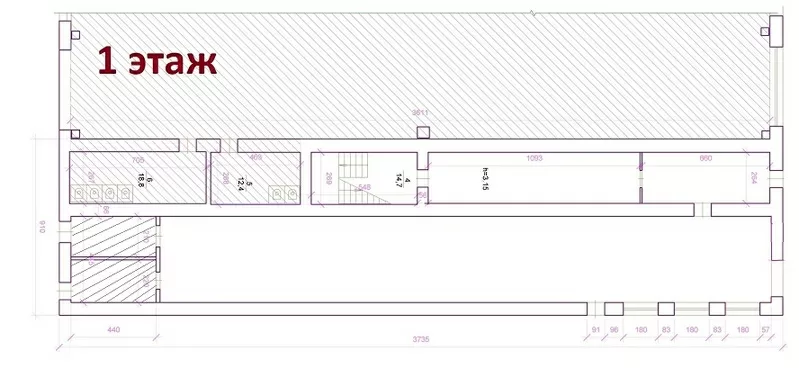
"Сдам в аренду помещение свободного назначения в г. Новосибирск 140 кв.м.
На первом этаже с отдельным входом в Дзержинском районе,
расположенное на улице Электрозаводская, 4.
Внимание:
Свободная планировка - никаких кабинетов!
Отопление уже включено в стоимость аренды!
Электричество 380/220в
Мокрая точка!
Высота 4 м!
Коммерческие условия:
- Арендная ставка 500 рублей за 1 м2/ 70000 рублей в месяц; / без отопления.
- Арендная ставка 799 рублей за 1 м2/ 111860 рублей в месяц; / с отоплением.
- Дополнительно оплачивается только электроснабжение.
- Аренда от собственника УСН.
- Без комиссии для Арендатора.
можно:
-в аренду 2 или 3 этаж по 260 кв м или 3 этажа 750 кв м по 400 р кв.м.по этому же адресу
Особые условия для старта:
Для нового арендатора (от 6 мес) стартовая акция — первый месяц аренды БЕСПЛАТНО!"










